Skip to content
Whittlesford Memorial Hall
Village Hall and Events Venue in Whittlesford, South Cambs
Menu
Home
Facilities
Main Hall
Millennium Room
Photo Gallery
Floorplan
About the Hall
Whats On
Events
Regular User Groups
Booking
Pricing
Bookings
Licensed Events
Terms and Conditions
Home
Facilities
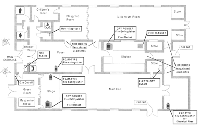
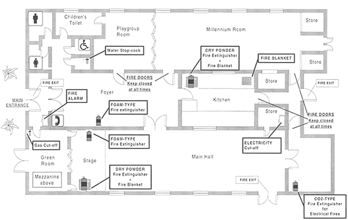
Floorplan
Floorplan
Privacy & Cookies: This site uses cookies. By continuing to use this website, you agree to their use.
To find out more, including how to control cookies, see here:
Cookie Policy
Whittlesford Memorial Hall
Sign up
Log in
Copy shortlink
Report this content
Manage subscriptions
Loading Comments...
You must be
logged in
to post a comment.
You must be logged in to post a comment.